Splendida Villa Diamante con piscina. Classe A++++

Basiglio (Milano)

Rif: Sag.12
Condividi Linkedin Whatsapp Stampa
Tratt. riservata
Villa a schiera
457 Mq
10 Vani
Giardino 962 mq
Classe energetica A+
4 Camere
4 Bagni
Garage
Una delle ville, se non la Villa, più bella e tecnologicamente più evoluta e moderna dell'intero comprensorio di Milano 3.

Posizionato ottimamente e libero su tre lati, questo immobile si presenta in condizioni perfette: facciate esterne, tetto, giardino, finiture interne, impianti, serramenti, pavimentazioni.... su ogni elemento sono sati eseguiti interventi di riqualificazione ed adeguamento.

Recentissimamente ristrutturata la villa è oggi in classe energetica A++++ e dispone di impianto per cogenerazione con pannelli solari e di tutte le tecnologie più avanzate.

Internamente l'immobile si presenta in modo impeccabile e la gestione di ogni ambiente concilia razionalità, funzionalità ed eleganza di stile.
Nessun intervento è necessario. L'immobile è perfetto ma, per sua natura, si presta, con piccoli interventi, ad essere adattato al proprio gusto personale.
Camere, bagni, zone "giorno" si sposano fra loro perfettamente e gli ambienti godono di silenziosità e luminosità durante l'intera giornata.

Il giardino è dotato di piscina, è piantumato in modo accurato e dotato di impianto di irrigazione e sistema anti-zanzare.

Una casa non per tutti ovviamente. Ma una casa bellissima.

Siamo a disposizione per ogni ragguaglio tecnico e per ulteriori immagini.


dimensioni:
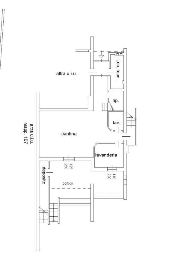
Piano seminterrato + portico mq.203
Piano rialzato mq. 194
Primo piano mq. 115
Sottotetto (h minima cm. 170) mq. 17
Giardino mq. 962
Intero lotto mq. 1165

MILANO 3
Il comprensorio oggi

Il comprensorio di Milano 3 è una città giardino satellite, dove si vive immersi nel verde, fuori dal caos cittadino, in un ambiente che offre tutti i servizi necessari alle migliori condizioni abitative: sicurezza, comfort, verde, vita sociale, negozi e collegamenti efficienti con la città.

Sorto nella prima fascia del Parco Agricolo Sud di Milano, a soli due chilometri dalla tangenziale, si estende su un'area di 155 ettari (1.550.000 mq), di cui:

85% verde e spazi gioco
10% abitazioni
5% strade, separate tra pedonali/ciclabili e carrabili, senza intersezioni grazie ai numerosi ponti.
Ospita oggi circa 8.000 residenti, con uno standard di verde dedicato di oltre 80 mq per abitante, uno dei più alti d'Europa.

Un corpo di vigilanza privato attivo 24 ore su 24 garantisce sicurezza continua su tutto il territorio.

La storia

Progettato alla fine degli anni '70 da Italcantieri (Gruppo Edilnord), Milano 3 fu realizzato tra il 1980 e il 1991, sull'esempio del precedente progetto di Milano 2. Nasce in risposta alla crescente esigenza di sfuggire alla congestione urbana senza rinunciare alla vicinanza con il centro economico della città.

Il verde fu pianificato sin dall'inizio con specie selezionate di alberi e arbusti, per creare nel tempo una vera città giardino.

Negli ultimi anni, l'evoluzione dell'assetto gestionale ha portato a una modernizzazione dei criteri amministrativi, con l'obiettivo di adeguare le abitazioni agli standard energetici e ambientali più attuali.

Oggi Milano 3 è un'oasi residenziale immersa in un parco maturo e curato, dove le infrastrutture e gli immobili sono oggetto di continua manutenzione e progetti di riqualificazione.

I servizi ai residenti

Il comprensorio è ricchissimo di servizi, pensati per soddisfare le esigenze di famiglie, professionisti e anziani, tra cui:

Scuole, centro sportivo, laghetti artificiali
Supermercati, bar, ristoranti, negozi di prossimità
Centro medico, farmacia, studi professionali
Servizi religiosi e ricreativi
Collegamenti pubblici con Milano città e i principali snodi viari.

Dettaglio immobile

Contratto Vendita
Rif Sag.12
Prezzo Tratt. riservata
Provincia Milano
Comune Basiglio
Indirizzo Residenza Sagittario
Superficie 457 mq
Vani 10
Camere 4
Bagni 4
Classe energetica A+ (DL 192/2005)
EPI 16.31 kwh/m2 anno
Riscaldamento autonomo
Condizioni ottime condizioni
Spese condominiali € 450
Anno di costruzione 1989
Arredato si
Ascensore no
Garage singolo si
Cantina si
Parcheggio si
Giardino 962 Mq
Cucina abitabile
Soffitta 17 mq
Taverna si
Balcone si
Terrazza si
Mansarda si

Consistenze

Descrizione Superficie Sup. comm.
Principali
Immobile - seminterrato 203 Mq 142 Mqc
Immobile - piano rialzato 194 Mq 194 Mqc
Immobile - 1° piano 115 Mq 115 Mqc
Soffitta - 2° piano 17 Mq 6 Mqc
Accessorie
Giardino/Resede 962 Mq 96 Mqc
Totale 553 Mqc

Video

Planimetrie

Richiedi maggiori informazioni

Autorizzazione al trattamento dei dati personali+
Dichiaro di aver letto l'informativa sulla privacy ed accetto le condizioni d'utilizzo del servizio.
Riempi il campo con il codice riportato nell'immagine*
Codice Captcha
Chiamaci Contattaci