TRILOCALE CON HOBBY – MILANO 3, BASIGLIO

Basiglio (Milano)

Rif: AC2
Condividi Linkedin Whatsapp Stampa
€ 2.000
Appartamento
162 Mq
6 Vani
Classe energetica E
4 Camere
3 Bagni
Garage
Ascensore
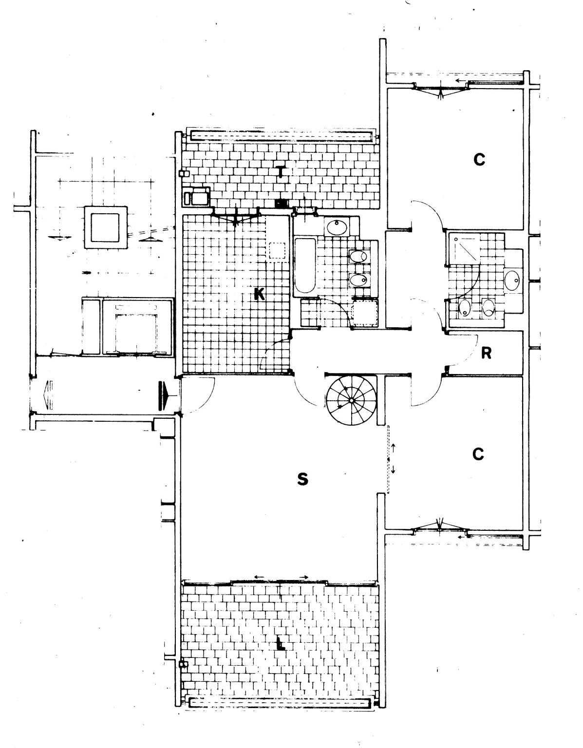
In residenza ristrutturata si propone appartamento in affitto di tre locali oltre al locale hobby . Disposto su due livelli: piano terreno e piano primo. Attualmente l'immobile ha, al piano primo un grande soggiorno, una sala da pranzo, due bagni, la cucina abitabile con il balcone e la camera da letto principale. La sala da pranzo potrebbe essere riconvertita, in relazione alle esigenze personali, nella seconda camera da letto al piano. Al piano terreno/hobby, collegato con il box doppio vi è un open space utilizzato come grande camera per i figli con zona studio e gioco oltre a cantina. Tale zona è dotata di ingresso separato dall'androne della residenza. L'appartamento è estremamente luminoso ed è collocato alla Res. Aceri, una delle più vicine al centro e migliori dell'intero comprensorio di Milano 3. La tipologia di questo appartamento lo rende estremamente comodo: si entra con l'automobile nel box collegato direttamente all'appartamento che ha quindi alcune caratteristiche normalmente presenti solo nelle ville. MILANO 3 Il comprensorio oggi Il comprensorio di Milano 3 è una città giardino satellite ove si vive nel verde, fuori dal caos cittadino, in un ambiente che offre tutti i servizi necessari alle migliori condizioni abitative: sicurezza, verde, comfort abitativo, vita sociale, negozi e servizi, ben collegato alla città. Sorge nella prima fascia del parco Agricolo Sud di Milano a due chilometri dalla tangenziale, su un'area di 155 ettari, pari a 1.550.000 metri quadrati, l'85% dei quali è mantenuto a verde e giochi, il 10% coperto da abitazioni e il 5% da strade rigorosamente divise fra carrozzabili e ciclabili/pedonali, che, grazie ai numerosi ponti, non si incrociano mai. I residenti nel comprensorio sono oggi circa 8.000, e godono di uno standard di verde dedicato eccezionalmente elevato, di oltre 80 mq. per abitante. Uno specifico corpo di vigilanza, sempre operativo, garantisce sicurezza e custodia 24 ore al giorno su tutto il territorio. La storia Progettata dopo la metà degli anni 70 fu realizzata dalla società Italcantieri del gruppo Edilnord, (poi divenuta Cantieri Riuniti Milanesi) fra il 1980 e il 1991 sulla base dell'esperienza della precedente costruzione di Milano 2 e sull'onda di un'esigenza che si era manifestata in tutta Europa in quegli anni: sfuggire alla congestione insalubre e soffocante dei centri urbani sovraffollati senza tuttavia allontanarsi troppo dai centri nevralgici delle attività produttive. L'impianto originario del parco, già nello stadio iniziale, era progettato, per specie selezionate d'essenze, alberi e arbusti, con il criterio di ottenere con il passare degli anni, una vera città giardino. Verso la fine del secolo scorso sensibili modifiche nell'assetto proprietario inducevano ad adottare criteri amministrativi e organizzativi più moderni e faceva emergere l'esigenza di adeguare le abitazioni ai moderni criteri di sostenibilità, di efficienza energetica e di governo del territorio. Oggi Milano 3 è immersa nel verde di un parco trentennale, ricco di essenze pregiate, oasi ecologica nella quale sia il patrimonio arboreo che le aree di servizio e le reti stradali godono di una attenta manutenzione e offrono un ambiente confortevole e, grazie al corpo di vigilanza, sicuro. Su tutto il territorio e nelle Residenze sono in corso o allo studio opere di riqualificazione per adeguare le unità abitative agli standard di efficienza energetica più avanzati. I servizi ai residenti Il Comprensorio è superdotato di servizi. Nel suo territorio, collocati a distanze agevolmente percorribili a piedi, si trovano: • Municipio e Centro Civico con tutti i servizi inerenti (il Comune di Basiglio ha i propri uffici al centro del territorio comprensoriale); • 2 scuole materne con asilo nido • le scuole elementari; • le scuole medie; • la chiesa e l'oratorio con gli impianti sportivi relativi; • la biblioteca comunale; • la sede dell'Università delle tre età; • gli uffici comprensoriali; • la sede del Corpo di Vigilanza e custodia; • la caserma dei carabinieri; • l'hotel Mediolanum Residence, **** • un ampio e moderno supermercato; • 6 aree gioco e sport a uso pubblico; • 2 Banche • 3 ristoranti, • 4 bar • 1 farmacia e 40 negozi di ogni genere; • un'officina di autoriparazioni; • lo Sporting Club, grande impianto a gestione privata, dotato di 2 piscine, palestre, campi da tennis coperti e scoperti e di numerose attrezzature per diverse attività sportive; • la sede della croce Amica con deposito ambulanze

Dettaglio immobile

Contratto Affitto
Rif AC2
Prezzo € 2.000
Provincia Milano
Comune Basiglio
Indirizzo Residenza Aceri
Superficie 162 mq
Vani 6
Camere 4
Bagni 3
Classe energetica E (DL 192/2005)
EPI 175 kwh/m2 anno
Riscaldamento centralizzato
Condizioni abitabile
Spese condominiali € 450
Anno di costruzione 1989
Ascensore si
Garage singolo si
Cantina si
Cucina angolo cottura
Taverna si
Balcone si
Terrazza si

Consistenze

Descrizione Superficie Sup. comm.
Principali
Immobile - 1° piano 117 Mq 117 Mqc
Immobile - piano terra 45 Mq 45 Mqc
Totale 162 Mqc

Planimetrie

Richiedi maggiori informazioni

Autorizzazione al trattamento dei dati personali+
Dichiaro di aver letto l'informativa sulla privacy ed accetto le condizioni d'utilizzo del servizio.
Riempi il campo con il codice riportato nell'immagine*
Codice Captcha
Chiamaci Contattaci