Appartamento in Vendita

Basiglio (Milano)

Rif: IMMO-126264073
Condividi Linkedin Whatsapp Stampa
€ 360.000
Appartamento
117 Mq
3 Vani
Classe energetica F
2 Camere
2 Bagni
Garage
Ascensore
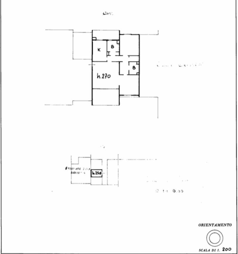
Scopri questo appartamento di 3 locali, situato al secondo piano di un elegante edificio del 1987, recentemente ristrutturato nelle parti comuni e facciata, dotato di ascensore. L'ingresso accoglie con un soggiorno che si apre su una loggia affacciata sul fronte parco, perfetto per momenti di relax. La cucina abitabile, completa di balcone di servizio, offre uno spazio ideale per le cene in famiglia.

L'appartamento vanta due camere matrimoniali, una delle quali con bagno interno, garantendo la massima privacy. Il bagno padronale è finestrato e include una zona lavanderia, mentre un ripostiglio aggiuntivo offre ulteriore spazio per riporre gli oggetti. Completano l'offerta una cantina inclusa nel prezzo e la possibilità di acquistare un box auto a uso autorimessa medio per Eu. 30.000.

Con una superficie commerciale di 117 m² e una calpestabile di 116 m², questo appartamento è perfetto per chi cerca spazio e comfort. L'orientamento nord-sud garantisce luminosità durante tutto il giorno, mentre il riscaldamento a gas naturale assicura un ambiente accogliente in ogni stagione. Non perdere l'opportunità di vivere in un contesto tranquillo e ben servito!

Dettaglio immobile

Contratto Vendita
Rif IMMO-126264073
Prezzo € 360.000
Provincia Milano
Comune Basiglio
Indirizzo Residenza Acacie
Superficie 117 mq
Vani 3
Camere 2
Bagni 2
Classe energetica F (DL 192/2005)
EPI 154.60 kwh/m2 anno
Piano 2 / 6
Riscaldamento centralizzato
Condizioni abitabile
Spese condominiali € 350
Anno di costruzione 1987
Arredato si
Ascensore si
Garage singolo si
Cantina si
Cucina abitabile
Balcone si

Consistenze

Descrizione Superficie Sup. comm.
Principali
Immobile - 2° piano 117 Mq 117 Mqc
Totale 117 Mqc

Planimetrie

Richiedi maggiori informazioni

Autorizzazione al trattamento dei dati personali+
Dichiaro di aver letto l'informativa sulla privacy ed accetto le condizioni d'utilizzo del servizio.
Riempi il campo con il codice riportato nell'immagine*
Codice Captcha
Chiamaci Contattaci